Anno
2022
Categoria
Produttivo/direzionale
Nome
HEADQUARTER RODA
Luogo
Lombardia, Lago di Varese (Italia)

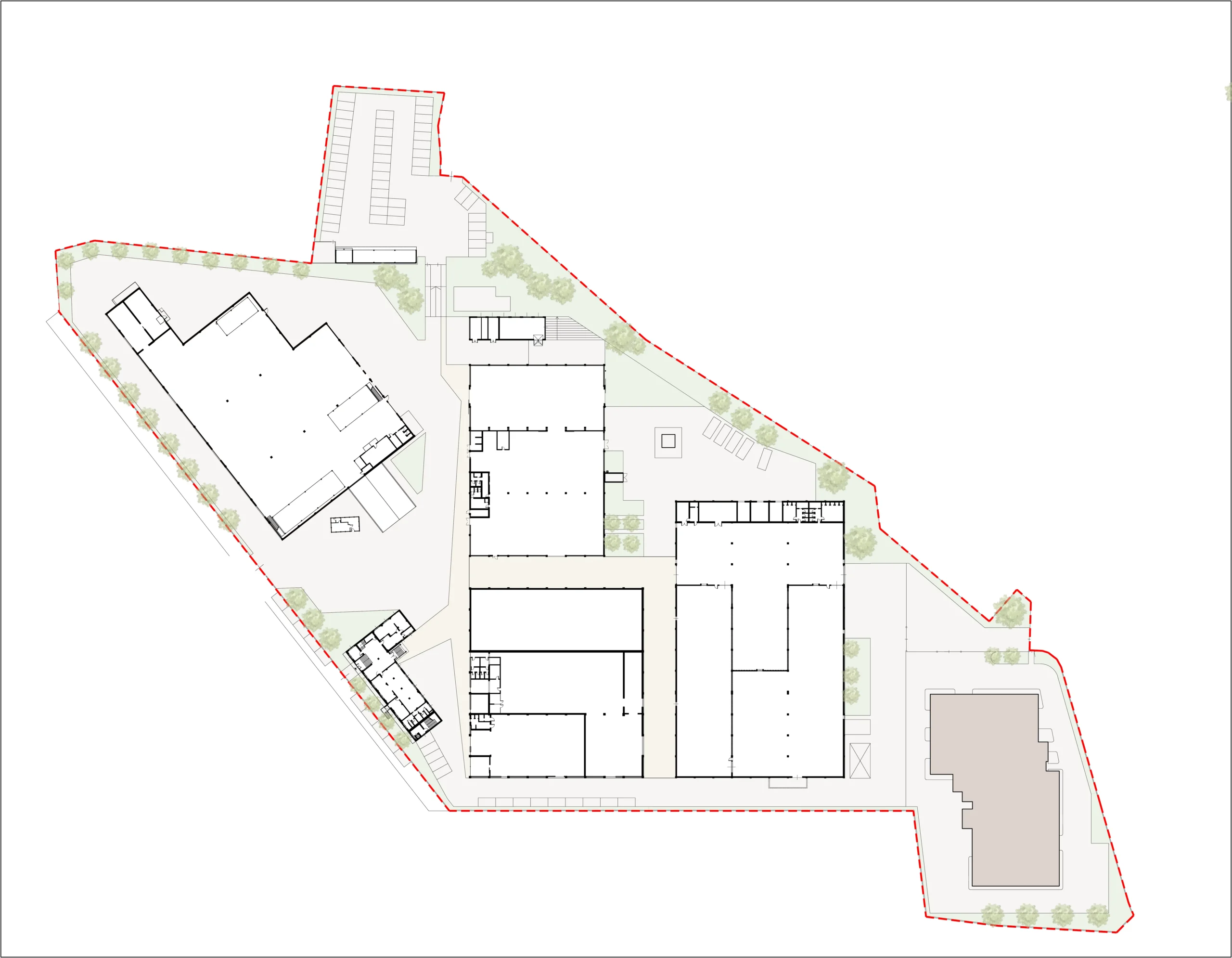
HEADQUARTER RODA

Il progetto prevedere la riorganizzazione complessiva della sede ex Bticino mediante interventi mirati ai singoli edifici costituenti il comparto produttivo ed a una riconfigurazione degli spazi esterni mediante percorsi appositamente studiati tra pedonalità e carrabilità e spazi di relazione, il tutto intercalato nella filosofia aziendale RODA attenta da sempre allo sviluppo sostenibile delle fonti energetiche alternative ed all’utilizzo di materiali naturali. L’ambizioso obiettivo del progetto è quello di creare una sinergia tra le diverse attività che sono presenti nel quartier generale distinte da laboratori, sviluppo e ricerca, formazione, produzione, stoccaggio e ampi spazi all’aperto a disposizione dei dipendenti e visitatori.